
リフォームスタジオいごこち一級建築士事務所アピールポイント
いごこちのスタッフ紹介
川本 宏明
(代表者)二級建築士 耐震診断技術者
(趣 味)ドライブ・昼寝
(家づくりへの想い)お客様へ、住み続ける幸せをお届けすること
(プランナー)一級建築士 耐震診断技術者 宅地建物取引主任者
(趣 味)うまい酒を飲むこと!これに限ります!
(家づくりへの想い)お客様とともに理想の暮らしを実現すること
真室 美由紀
♯1 Listen to ・・・出会い いごこち仕事のススメ方
【2016年 秋 寝屋川 葛原新町 リフォーム例】
いごこちのモノ(家)づくりはお客様との会話からスタートします
築25年のマンションにおすまいのS様
最初のご要望はバリアフリーと収納スペースの拡大、設備機器の更新でした
ご高齢のお母様と同居されることを考慮し、
お身体にご負担のない生活が送れるように、リフォームすることを切望されていました
最初の出会いはお互いに手探りで、何にご不満を感じておられるのか、
どのような暮らし方をご希望されているのか、
まずは対話によりお客様を知ることから始まります
♯2 Design・・・自由設計
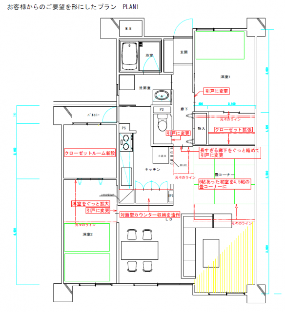
お客様からのご要望は・・・ ●全室をバリアフリーにしてほしい ●洋室2をウォーキングクローゼットとして使用したい ●洋室3を夫婦の部屋とするため、拡大してほしい ●和室を縮小してリビングを広げてほしい●キッチンに収納スペースを設けてほしい
●洋室2を約3帖のクローゼットルームとして洋室3を広げた●長すぎる廊下をリビングに取り込む計画とした●和室の間仕切りを撤去してリビングの一部として使えるよう畳コーナーを計画した●システムキッチンの位置はそのままで対面型のカウンター収納を計画
●洋室2があった場所をご夫婦のお部屋としてベッド2台分が入るスペースを確保●洋室3があった場所に和室を設定●和室を洋室3場所に移動して、来客用にも対応●収納スペースを部屋全体の中心部に持ってくることで、リビングが広がりダイニングスペースができた
●PLAN2で収納部を部屋の中心に設定したが、より収納量を確保する計画とした●システムキッチンをL型にしてカップボードを通路側に設定●洋室2への動線がスムーズになり、リビングとの一体感も生まれた
♯3 お客様とパースでイメージを共有しながら計画を進めます
決定PLANに向けてリファイン
PLAN1-1(イメージパース)
PLAN1-2(イメージパース)
PLAN2(イメージパース)
PLAN3(イメージパース)
〇全3プランのご提案の中で、
・和室を東側に、洋室を西側に移動させること
・収納部を部屋の中心集約すること
・廊下をカット(短く)してリビングに組み入れること
・カップボードを通路側に新設すること
についてはご同意をいただきました
〇キッチンについてはL型とI型の案で検討を重ねました
・L型のメリット・・・リビングと対面式になるので一体感が生まれ、
配膳動線がスムーズになるとともに明るく開 放的なイメージになる
・L型のデメリット・・I型に比べて収納量がやや劣り、作業スペースが十分に確保できない
〇内装のイメージ
打合せを重ねるうち、奥様がふるさとの想い出を大切にされていて「ほっこりと安らげる空間」を
イメージしていらっしゃることが見えてきて、内装のイメージは”和モダン”で固まりました
キッチンはL型のデメリットを排除し、I型の方が”和”のイメージと連動させやすいため、
I型に絞って最終のご提案をしました
♯4 最終プランのご提案
・PLAN3をベースにキッチンをI型にしてリビング側と通路側の2方向の動線を確保しました
・部屋の中心に配置した収納部はウォークスルーの仕様として将来の仕様変更に対応できるように配慮しました
・何回もお話し合いを重ねる中でようやくお客様が納得する希望の形になりました
ほっこりと安らげる空間にしたいとのご要望により
・内装は木目を活かしたミディアムブラウンをカラーの基調とし、天井には梁型の間接照明を仕込みました
・キッチンの袖壁にはリズムよく飾り柱を配置して空間全体を引き締めています
・経年とともに、空間自体が風格を増していくよう配慮しています
♯5 Craftmanship・・・施工
いごこちの頼りになる職人さん
いごこちでは、毎回同じメンバーで工事を担当します
現場によってコロコロ担当者や職人さんが変わることは、まずありえません
何年もかけて信頼関係を築いてきた頼りになる仲間達です
いごごちが信頼されているのもこの仲間達がいるからです
♯6新たな出会いの場 We well value this encounter
完成内覧会開催・イベント
いごこちは、特に営業ツールを持っている訳ではありません
ほとんどの出会いがお客様の紹介であったり、口コミです
年に何度か開催する完成内覧会や、イベントでの新しい出会いをとても大切にしています
実際に完成した空間を見ていただき、少しでも共感していただけたらと思います
開催情報はホームページ・Facebook等でご案内しております
マイページ登録されていない方
\ かんたん!1分で登録完了! /
会員限定4つのメリット
最大5社までまとめて見積りができる
一度に10社まで匿名で問い合せができる
気になる会社や事例写真を
保存して分析できる
リフォームに役立つ情報を
定期配信
<注意>
マイページ登録はリフォームを検討中のお客様を対象としたサービスです。
営業・商談・営利目的での「マイぺージ」登録やメッセージなどの送信はご遠慮ください。


